Description du bien
Conditions d'accès : Duflot (zone B1) et Garantie des Loyers Impayés (GLI)
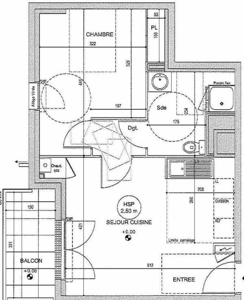
Petite résidence récente "Ax Home" de 31 appartements située Rue de Rennes à Cesson-Sevigne, découvrez ce joli T2 de 42.32m² exposé Sud/ouest composé d'une entrée, d'un salon-séjour avec balcon, cuisine ouverte. Dégagement partie nuit composé d'une chambre avec placard, SDE avec WC. Parking privatif. Libre .
DPE C: Consommations : C : 97 kw/h/m2 - GES : C 18kqC02/m²/an. Consomations indicatives : 380.00 euros - 560.00 euros
Loyer 544.54 euros, charges de copropriété : 38 euros, loyer charges incluses: 582.54 euros.
Honoraires 1 (dossier candidat, locataire et visites) : 427 ; honoraires 2 (EDL) : 128 euros ; honoraires TTC globaux : 555 euros
Informations complémentaires
- Ville : Cesson-sévigné
- Pièce(s) : 2
- Chambre(s) : 1
- Surface habitable * : 42 m²
- Chauffage : Individuel
- WC : 1
- Étage : 2
- Nb. de niveaux : 1
- Balcon : Oui
- Rez de jardin : Oui
- Date de disponibilité : 22/01/2026
- Honoraires TTC : 555 €
- Dépôt de garantie : 545 €
- Référence : 59775920
Dépenses énergétiques
* Surface approximative.
