Description du bien
INEO vous propose un appartement T3 situé au premier étage d'une résidence à taille humaine composée de 20 appartements. Livraison début 2025
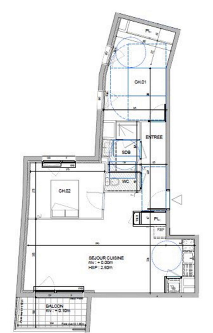
Ce T3 à l'architecture soigné sera composé d'une entrée avec placard, d'une cuisine ouverte sur le salon séjour de 30 m², d'un balcon idéalement exposé, 2 chambres dont une avec placard, une salle d'e bains, WC. 
Eléments techniques : Hall d'entrée protégé par digicode et vidéophone - Ascenseur - Parking souterrain
Situé en plein centre-ville de GEVEZE, vous bénéficiez de tous les services et commerces dont vous avez besoin. Desservie pas les lignes 68 et 168 express du réseau STAR.
Prix stationnement et cave inclus : 267 000  euros
Profitez de la garantie revente zen'immo. Plus de 200 biens sur notre site internet INEOHABITAT. Contactez Katia LOCHU au 06.31.64.71.85
Les informations sur les risques auxquels ce bien est exposé sont disponibles sur le site Géorisques : http://www.georisques.gouv.fr
Copropriété de 20 lots.
Informations complémentaires
- Ville : Gévezé
- Pièce(s) : 3
- Chambre(s) : 2
- Surface habitable * : 66 m²
- Étage : 1
- Nb. de niveaux : 1
- Prix : 267 000 €
- Honoraires TTC : 26 000 €
- Référence : 55917313
Dépenses énergétiques
 
                   
                  * Surface approximative.
 
     
         
         
         
                   
                  