Acheter maison 5 pièces 150 m²

à Noyal-Châtillon-sur-Seiche - Réf. 59409619

147 000 € FAI

5 pièce(s)
3 chambres
150 m²
224 m²

Description du bien

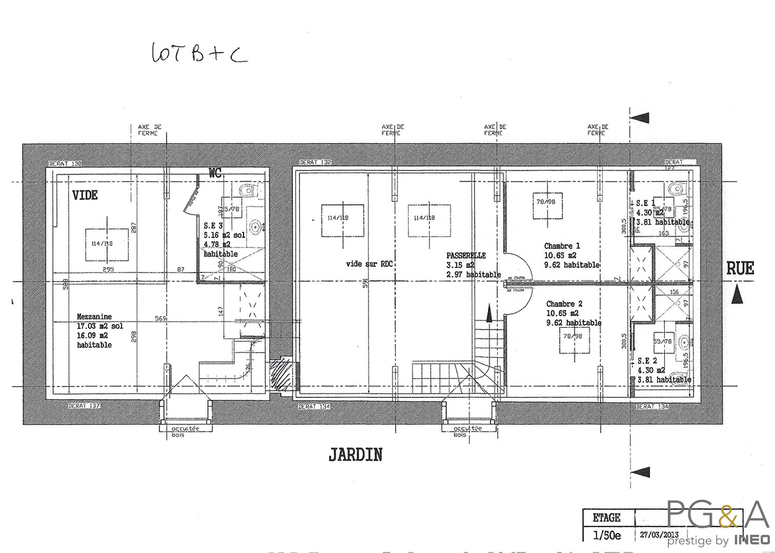
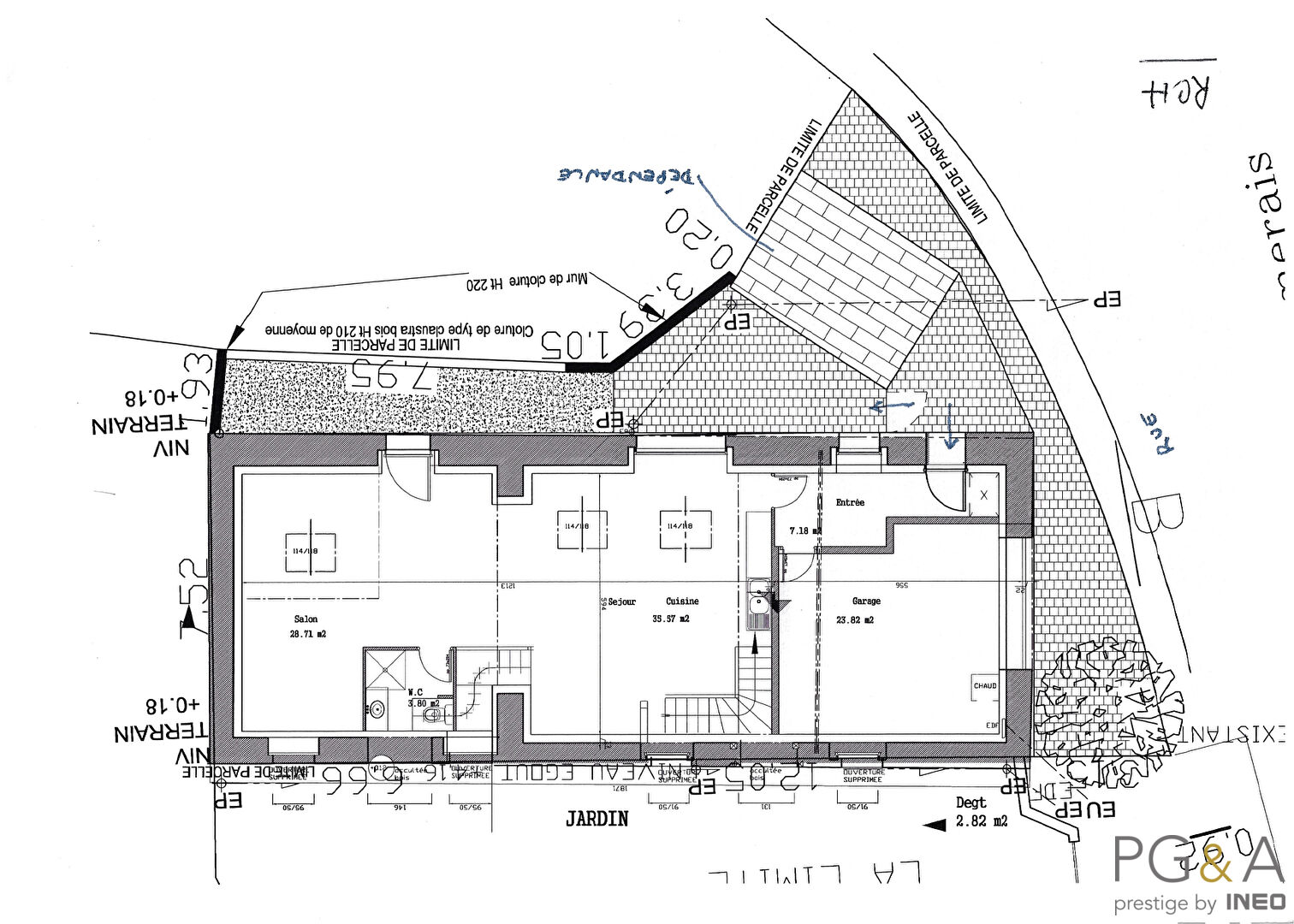
NOYAL CHATILLON SUR SEICHE - Longère d'environ 100m² au sol sur deux niveaux et sa petite dépendance à usage d'abri de jardin.
En plein bourg, cette longère en pierre et terre attend de prendre vie comme maison d'habitation. Ancienne dépendance à usage de stockage, le bâtiment est en bon état (toiture, charpente et murs) mais nécessite un aménagement complet avec permis de construire. Elle bénéficie d'une courette orientée au sud.
Un permis a été déposé pour sa rénovation, permis qui peut être repris en l'état ou modifié en en faisant la demande en mairie. La configuration et le permis déposés prévoient la création d'un garage accessible en pignon, d'un vaste espace de vie au RDC et de 3 chambres à l'étage. Les plans actuels proposent 150m² de surface habitable environ.
Les travaux liés au permis de construire restent à effectuer, le bâtiment est actuellement nu, vide et sans AUCUN aménagement. Compteur électrique déjà installé, compteur d'eau à installer. (5.00 % honoraires TTC à la charge de l'acquéreur.)

Informations complémentaires

  • Ville : Noyal-châtillon-sur-seiche
  • Pièce(s) : 5
  • Chambre(s) : 3
  • Surface habitable * : 150 m²
  • Surface du terrain * : 224 m²
  • Nb. de niveaux : 1
  • Prix : 147 000 €
  • Honoraires TTC : 7 000 €
  • Référence : 59409619

Dépenses énergétiques

/sites/ineohabitat.com/modules/custom/immobilier/img/dpe/dpe-z.png
/sites/ineohabitat.com/modules/custom/immobilier/img/ges/ges-z.png

* Surface approximative.

Localisation du bien

Logo Ineo Habitat

PGA Prestige by INEO
14, rue de Nemours
35000 Rennes

 02 99 79 30 79

Simulateur financier

Résultat
de la simulation
Emprunt de
Durée de l'emprunt
Mensualités de
Retour à la liste